LEMON Manuals: Even more car manuals for everyone: 1960-2025
Home >> Toyota >> 2013 >> Prius Four >> Repair and Diagnosis >> Steering >> Steering Column >> Steering Column (Service Information) (Except Plug-In) >> Steering Column Assembly >> Inspection >> Inspection
April 5, 2026: LEMON Manuals is launched! Read the announcement.

Steering Column Assembly: Inspection: Inspection

NOTE:

When using a vise, do not overtighten it.

  1. INSPECT PRELOAD 
    1. Secure the steering column assembly in a vise.
      Fig 1: Measuring Preload
      GTY210975Courtesy of © TOYOTA, LICENSE AGREEMENT TMS1002
    2. Using SST, turn the main shaft and measure the preload.
      • SST: 09616-00011 

      Preload (for Brush Type Motor) 

      Torque: 1.1 N*m (11 kgf*cm, 10 in.*lbf) 

      or less

      Preload (for Brushless Type Motor) 

      Torque: 0.9 to 1.5 N*m (10 to 15 kgf*cm, 8 to 12 in.*lbf) 

      If the preload is not as specified, replace the power steering motor assembly or electric power steering column sub-assembly with a new one.

  2. INSPECT STEERING COLUMN ASSEMBLY 
    1. Inspect the bushings.
      1. Check that the 2 bushings are securely installed to the steering column assembly.
        Fig 2: Inspecting Steering Column Assembly
        GTY291573Courtesy of © TOYOTA, LICENSE AGREEMENT TMS1002
        TEXT IN ILLUSTRATION

        *1 Bushing

        If the 2 bushings are installed improperly, replace the electric power steering column sub-assembly with a new one.

      2. Check the 2 bushings for deformation and damage.

        If the bushings are deformed or damaged, replace the electric power steering column sub-assembly with a new one.

    2. Inspect the capsules.
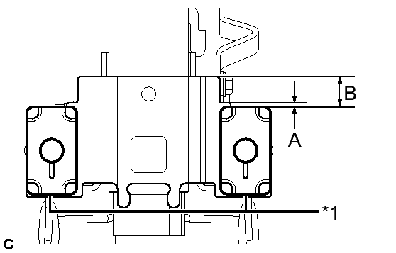
      1. Check that the 2 capsules are securely installed to the steering column assembly as shown in the illustration.
        Fig 3: Identifying Capsules
        GTY293052Courtesy of © TOYOTA, LICENSE AGREEMENT TMS1002

        Standard Dimension

        A B
        2 mm (0.0787 in.) 17 mm (0.669 in.)
        TEXT IN ILLUSTRATION

        *1 Capsule

        If the capsules are not positioned as specified, replace the electric power steering column sub-assembly with a new one.

      2. Check the 2 capsules for deformation and damage.

        If either of the capsules is deformed, loose, missing or damaged, replace the electric power steering column sub-assembly with a new one.