LEMON Manuals: Even more car manuals for everyone: 1960-2025
Home >> Toyota >> 2017 >> Avalon XLE Plus >> Repair and Diagnosis (Single Page) >> Electrical >> Fuses & Circuit Breakers >> OEM Junction Block, Ecu & Fuse/Relay Locations (Except Hybrid) >> Relay Block Identification >> Engine Room Relay Block Assembly And Engine Room Junction Block Assembly - Front Fender Apron LH
April 5, 2026: LEMON Manuals is launched! Read the announcement.

Engine Room Relay Block Assembly And Engine Room Junction Block Assembly - Front Fender Apron LH

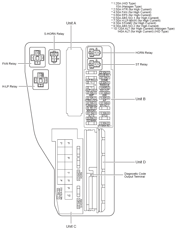
Fig 1: Engine Room R/B And J/B Assembly Fuse & Relay Locations
G09095275Courtesy of © TOYOTA, LICENSE AGREEMENT TMS1002
ENGINE ROOM R/B AND J/B RELAY IDENTIFICATION

RELAY DESCRIPTION
H-LP Relay
Fan Relay
S-Horn Relay
Horn Relay
ST Relay
Engine Room R/B And J/B Assembly Fuse Identification Legend

Fuse
5A MAYDAY
5A METER-IG2
7.5A ALT-S
7.5A AM2
7.5A DOME
7.5A ECU-IG2 NO. 3
7.5A EFI NO. 1
7.5A INJ
7.5A S-HORN
10A ECU-B NO. 1
10A EFI NO. 3
10A EOCS
10A HORN
10A STRG LOCK
15A AMP
15A EFI NO. 2
15A H-LP LH-LO (Halogen Type, LED Type)
15A H-LP RH-LO (Halogen Type, LED Type)
15A IGN
15A TURN & HAZ
20A A/F
20A H-LP LH-LO (HID Type)
20A H-LP RH-LO (HID Type)
20A RADIO-B
25A IG2-MAIN
30A ABS NO. 2
30A EFI-MAIN NO. 1
30A H-LP-MAIN
30A ST/AM2
50A ABS NO. 1
50A FAN
50A HTR
80A EPS
120A ALT (Before Oct. 2015 Production Halogen Type, From Oct. 2015 Production 100A Type Generator)
140A ALT (Before Oct. 2015 Production HID Type, From Oct. 2015 Production 130A Type Generator)
Fig 2: Engine Room R/B And J/B Assembly (Unit A)
G09095276Courtesy of © TOYOTA, LICENSE AGREEMENT TMS1002
Fig 3: Engine Room R/B And J/B Assembly (Unit C)
G09095277Courtesy of © TOYOTA, LICENSE AGREEMENT TMS1002
Fig 4: Engine Room R/B And J/B Assembly (Unit D)
G09095278Courtesy of © TOYOTA, LICENSE AGREEMENT TMS1002