LEMON Manuals: Even more car manuals for everyone: 1960-2025
Home >> Toyota >> 2021 >> RAV4 LE, AWD >> Repair and Diagnosis (Single Page) >> Body & Frame >> Seats >> Front Power Seat Control System (Except HV, W/ Memory) - Diagnostics - Introduction >> FRONT POWER SEAT CONTROL SYSTEM (for Gasoline Model with Memory) >> System Diagram [11/2018 - 12/2021] >> System Diagram [11/2018 - 12/2021]
April 5, 2026: LEMON Manuals is launched! Read the announcement.

System Diagram [11/2018 - 12/2021]

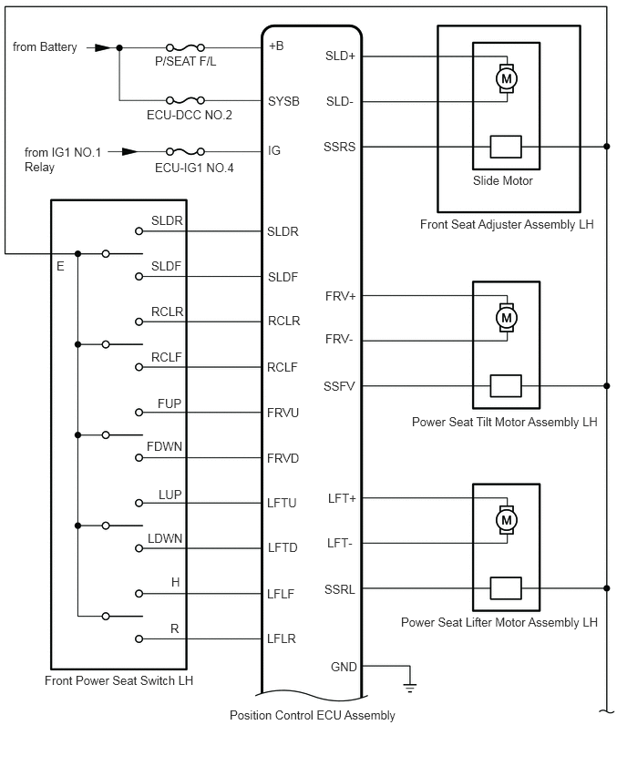
Fig 1: Front Power Seat Control System Diagram (1 Of 2)
GTY887314Courtesy of © TOYOTA, LICENSE AGREEMENT TMS1002
Fig 2: Front Power Seat Control System Diagram (2 Of 2)
GTY892749Courtesy of © TOYOTA, LICENSE AGREEMENT TMS1002
COMMUNICATION TABLE

Sender Receiver Signal Line
ECM Main Body ECU (Multiplex Network Body ECU) Shift position P signal CAN
Main Body ECU (Multiplex Network Body ECU) Position Control ECU Assembly
  • M1 switch signal
  • M2 switch signal
  • SET switch signal
  • Shift position P signal
  • Transmission information
  • Driving position buzzer request
  • Driver seat position request
  • Driver seat position data
CAN
Certification ECU (Smart Key ECU Assembly) Main Body ECU (Multiplex Network Body ECU)
  • Engine switch signal
  • Memory call replay request
  • Key identification No. 1 to No. 7 acquisition condition
CAN
Position Control ECU Assembly Main Body ECU (Multiplex Network Body ECU)
  • State signal of driver seat
  • State signal of driving position buzzer
CAN