LEMON Manuals: Even more car manuals for everyone: 1960-2025
Home >> Volkswagen >> 2025 >> ID.4 Pro S Plus >> Repair and Diagnosis >> Quick Lookups >> Wiring Diagrams >> OEM Wiring Diagrams Electric Drive System, Engine/Motor Control Module ,EBJA,EBJC,EBNA,EBRA,ECUA,EDCA,EDCC,EDDA,EDFA >> OEM Wiring Diagrams Electric Drive System, Engine/Motor Control Module, EBJA, EBJC, EBNA, EBRA, ECUA, EDCA, EDCC, EDDA, EDFA >> Engine/Motor Control Module
April 5, 2026: LEMON Manuals is launched! Read the announcement.

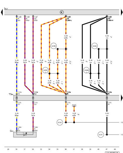
Engine/Motor Control Module

GWWE21-001041124Courtesy of VOLKSWAGEN GROUP OF AMERICA, INC.

G18 

Temperature Sensor

J623 

Engine/Motor Control Module

T2ax 

2-Pin Connector, Black

T17a 

17-Pin Connector, Black

T17c 

17-Pin Connector, Black

T32f 

32-Pin Connector, Gray

T32h 

32-Pin Connector, Blue

TS66 

Rear Suspension Coupling Point

B383 

Powertrain CAN Bus High Connection 1 (in Main Wiring Harness)

B384 

Powertrain CAN Bus High Connection 2 (in Main Wiring Harness)

B390 

Powertrain CAN Bus Low Connection 1 (in Main Wiring Harness)

B391 

Powertrain CAN Bus Low Connection 2 (in Main Wiring Harness)

E131 

CAN Bus Drive High Connection 5 (in Engine Wiring Harness)

E132 

CAN Bus Drive Low Connection 5 (in Engine Wiring Harness)

For USA Only

*2 

For Vehicles Without UNECE Cyber Security

*3 

Not for USA

*4 

For AWD Vehicles

*5 

For Vehicles with UNECE Cyber Security