LEMON Manuals: Even more car manuals for everyone: 1960-2025
Home >> Infiniti >> 2009 >> M45 Base >> Repair and Diagnosis >> External Pages >> Different car >> Section 39 (Lighting System) >> Stop Light Switch >> Installation
April 5, 2026: LEMON Manuals is launched! Read the announcement.

Stop Light Switch: Installation

WARNING: This page is about a different car, the 2008 Toyota Tundra. However, it is still accessible from the selected car via links, so may be relevant.
  1. INSTALL STOP LIGHT SWITCH MOUNTING ADJUSTER 
    1. Attach the 2 claws to install the adjuster.
      Fig 1: Identifying Stop Light Switch Mounting Adjuster Claws
      G05160937Courtesy of © TOYOTA, LICENSE AGREEMENT TMS1002
  2. INSTALL STOP LIGHT SWITCH ASSEMBLY 
    1. Insert the stop light switch so that it contacts the pedal cushion.
      NOTE: Insert the stop light switch with a force of less than 98 N*m (1000 kgf*cm 72.3 ft.*lbf).
      Fig 2: Identifying Stop Light Switch
      G05160940Courtesy of © TOYOTA, LICENSE AGREEMENT TMS1002
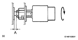
    2. Rotate the stop light switch clockwise 90° to install it to the adjuster.

      Standard: 

      A: 1.5 to 2.5 mm (0.0591 to 0.0984 in.) 

      Fig 3: Identifying Stop Light Switch
      G05160941Courtesy of © TOYOTA, LICENSE AGREEMENT TMS1002
      NOTE:
      • When the stop light switch is rotated clockwise, make sure the stop light switch moves outward less than 1 pitch (pitch: distance between 2 screw threads).
      • Rotate the stop light switch with a torque of 1.5 N*m (15 kgf*cm, 13 in.*lbf).
      • Do not allow silicon grease to contact the stop light switch.
    3. Connect the connector.
      Fig 4: Locating Connector
      G05160942Courtesy of © TOYOTA, LICENSE AGREEMENT TMS1002