LEMON Manuals: Even more car manuals for everyone: 1960-2025
Home >> Lexus >> 2007 >> RX 400h AWD >> Repair and Diagnosis >> External Pages >> Different car >> Section 332 (Brake Control) >> Vehicle Stability Control System >> Terminals Of Ecu
April 5, 2026: LEMON Manuals is launched! Read the announcement.

Terminals Of Ecu

WARNING: This page is about a different car, the 2008 Toyota RAV4. However, it is still accessible from the selected car via links, so may be relevant.
  1. SKID CONTROL ECU 
    Fig 1: Identifying Skid Control ECU Connector Terminals
    G05584990Courtesy of © TOYOTA, LICENSE AGREEMENT TMS1002
    SYMBOLS AND TERMINAL DESCRIPTION

    Symbols (Terminal No.) Terminal Description
    GND2 (A19-1) Motor ground
    BM (A19-2) Motor relay input
    FR+ (A19-3) Front RH wheel speed sensor power supply
    FL- (A19-4) Front LH wheel speed signal input
    RR+ (A19-5) Rear RH wheel speed signal power supply
    RL- (A19-6) Rear LH wheel speed signal input
    FSW+ (A19-7)*1 Brake pedal load sensing switch input
    CANH (A19-11) CAN communication line H
    SP1 (A19-12) Speed signal output for combination meter
    MRF (A19-14) Fail safe motor relay output
    MR (A19-15) Motor relay output
    STPO (A19-16) Stop light relay output
    FR- (A19-17) Front RH wheel speed signal input
    FL+ (A19-18) Front LH wheel speed sensor power supply
    RR- (A19-19) Rear RH wheel speed signal input
    RL+ (A19-20) Rear LH wheel speed sensor power supply
    STP2 (A19-21) Stop light relay input
    TS (A19-24) Sensor diagnosis check input
    CANL (A19-25) CAN communication line L
    STP1 (A19-27) Stop light switch input
    HDCS (A19-28)*2 Downhill assist control switch input
    +BS (A19-31) Solenoid valve power supply
    GND1 (A19-32) Skid control ECU ground
    CSW (A19-43)*3 AUTO LSD switch input
    R+ (A19-45) Power supply for motor relay
    IG1 (A19-46) ECU power supply
    HINT:
    *1: w/16-inch disc
    *2: w/ Downhill assist control
    *3: for 2WD (w/ AUTO LSD)
  2. CHECK SKID CONTROL ECU 
    Fig 2: Identifying Skid Control ECU Cconnector Terminals
    G05584991Courtesy of © TOYOTA, LICENSE AGREEMENT TMS1002
    1. Disconnect the A19 ECU connector.
    2. Measure the voltage and resistance of the wire harness side connector.

      HINT:

      The voltage cannot be measured with the connector connected to the skid control ECU as the connector is water resistant.

      Skid control ECU: 

      SYMBOLS AND TERMINAL DESCRIPTION

      Symbols (Terminal No.) Wiring Color Terminal Description Condition Specified Condition
      GND2 (A19-1) - Body ground W-B - Body ground Skid control ECU ground Always Below 1 Ω
      STP1 (A19-27) - Body ground L - Body ground Stop light switch input Stop light switch OFF
      Brake pedal released
      Below 1.5 V
      STP1 (A19-27) - Body ground L - Body ground Stop light switch input Stop light switch ON
      Brake pedal depressed
      8 to 16 V
      STP2 (A19-21) - Body ground L - Body ground Stop light relay input Stop light switch OFF
      Brake pedal released
      Below 1.5 V
      STP2 (A19-21) - Body ground L - Body ground Stop light relay input Stop light switch ON
      Brake pedal depressed
      8 to 16 V
      STPO (A19-16) - Body ground W - Body ground Stop light relay output Always 10 to 14 V
      +BS (A19-31) - Body ground W - Body ground Solenoid relay power supply Always 10 to 14 V
      IG1 (A19-46) - Body ground L - Body ground ECU power supply Ignition switch ON 10 to 14 V
      HDCS (A19-28)*2 Y - Body ground Downhill assist control switch input Downhill assist control switch ON Below 1 Ω
      HDCS (A19-28)*2 Y - Body ground Downhill assist control switch input Downhill assist control switch OFF 10 kΩ or higher
      FSW+ (A19-7)*1 P - Body ground Brake pedal load sensing switch input Brake pedal load sensing switch ON
      Brake pedal released
      202.4 to 223.7 Ω
      FSW+ (A19-7)*1 P - Body ground Brake pedal load sensing switch input Brake pedal load sensing switch OFF
      Brake pedal released
      0,95 to 1.05 kΩ
      CSW (A19-43)*3 L - Body ground AUTO LSD switch input AUTO LSD switch ON Below 1 Ω
      CSW (A19-43)*3 L - Body ground AUTO LSD switch input AUTO LSD switch OFF 10 kΩ or higher
      HINT:
      *1: w/ 16-inch disc
      *2: w/ Downhill assist control
      *3: for 2WD (w/ AUTO LSD)

      If the result is not as specified, there may be a malfunction on the wire harness side.

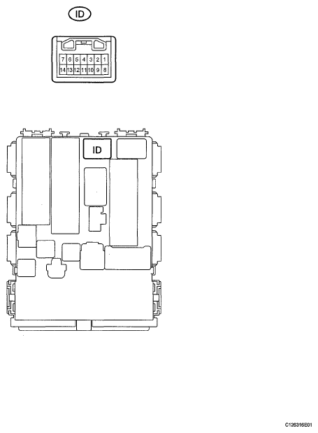
  3. CHECK INSTRUMENT PANEL JUNCTION BLOCK (MAIN BODY ECU) 
    Fig 3: Identifying Instrument Panel Junction Block (Main Body ECU) Connector Terminals
    G05584992Courtesy of © TOYOTA, LICENSE AGREEMENT TMS1002
    1. Disconnect the ID junction block connector.
    2. Measure the resistance of the wire harness side connector.
      SYMBOLS AND TERMINAL DESCRIPTION

      Symbols (Terminal No.) Wiring Color Terminal Description Condition Specified Condition
      PKB (ID-4) - Body ground B - Body ground Parking brake switch input Parking brake switch ON Below 1 Ω
      PKB (ID-4) - Body ground B - Body ground Parking brake switch input Parking brake switch OFF 10 kΩ or higher

      If the result is not as specified, there may be a malfunction on the wire harness side.

    3. Reconnect the ID junction block connector.
    4. Measure the voltage of the wire harness side connector.
      SYMBOLS AND TERMINAL DESCRIPTION

      Symbols (Terminal No.) Wiring Color Terminal Description Condition Specified Condition
      PKB (ID-4) - Body ground B - Body ground Parking brake switch input Parking brake switch ON Below 1 V
      PKB (ID-4) - Body ground B - Body ground Parking brake switch input Parking brake switch OFF 10 to 14 V

      If the result is not as specified, the junction block (ECU) may be a malfunction.