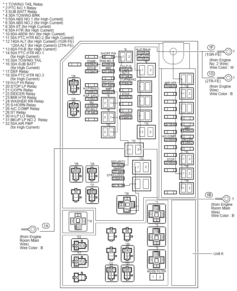
Engine Room Relay Block Assembly And Engine Room Junction Block Assembly: Notes
FRONT FENDER APRON LH (See Figure)
ENGINE ROOM J/B RELAY IDENTIFICATION
| RELAY NUMBER | RELAY DESCRIPTION |
|---|---|
| *1 | Towing Tail Relay |
| *2 | PTC No.1 Relay |
| *17 | DEF Relay |
| *19 | H-LP HI Relay |
| *20 | Stop LP Relay |
| *21 | C/OPN Relay |
| *22 | Deicer Relay |
| *23 | MIR HTR Relay |
| *24 | Washer RR Relay |
| *25 | S-Horn Relay |
| *26 | A/C COMP Relay |
| *28 | ST Relay |
| *30 | H-LP LO Relay |
| *31 | BKUP LP No.2 Relay |
ENGINE ROOM R/B ASSEMBLY AND ENGINE ROOM J/B ASSEMBLY FUSE IDENTIFICATION LEGEND
| Fuse | System | |
|---|---|---|
| 7.5A | ALT-S | Charging |
| 7.5A | EFI NO.2 | Engine Control (1GR-FE), Electronically Controlled Transmission and A/T Indicator (1GR-FE) and Cruise Control (1GR-FE) |
| Engine Control (2TR-FE), Electronically Controlled Transmission and A/T Indicator (2TR-FE) and Cruise Control (2TR-FE) | ||
| 7.5A | MAYDAY | Safety Connect |
| 7.5A | SMART | Smart Key System |
| 10A | A/C COMP | Air Conditioning |
| 10A | DOME | Automatic Light Control and Light Auto Turn Off System |
| Back Door Opener | ||
| Combination Meter | ||
| Door Lock Control | ||
| Interior Light | ||
| Power Window | ||
| Rear Wiper and Washer | ||
| Smart Key System | ||
| Theft Deterrent | ||
| Wireless Door Lock Control (w/o Smart Key System) | ||
| 10A | ECU-B | 4WD (VF2A) and Rear Differential Lock |
| 4WD (VF4BM) | ||
| ABS, Crawl, Multi-Terrain Select, Auto LSD, Downhill Assist Control, Hill-Start Assist Control, TRAC, A-TRAC and VSC | ||
| Accessory Meter | ||
| Air Conditioning | ||
| Automatic Light Control and Light Auto Turn Off System | ||
| Back Door Opener | ||
| Combination Meter | ||
| Door Lock Control | ||
| Engine Control (1GR-FE), Electronically Controlled Transmission and A/T Indicator (1GR-FE) and Cruise Control (1GR-FE) | ||
| Engine Control (2TR-FE), Electronically Controlled Transmission and A/T Indicator (2TR-FE) and Cruise Control (2TR-FE) | ||
| Front Fog Light | ||
| Headlight | ||
| Interior Light | ||
| Key Reminder (w/o Smart Key System) | ||
| Kinetic Dynamic Suspension System | ||
| Power Steering | ||
| Power Window | ||
| Rear Wiper and Washer | ||
| 10A | ECU-B | Seat Belt Warning |
| Sliding Roof | ||
| Smart Key System | ||
| SRS | ||
| Taillight and Illumination | ||
| Theft Deterrent | ||
| Tire Pressure Warning System | ||
| Trailer Towing | ||
| Wireless Door Lock Control (w/o Smart Key System) | ||
| 10A | ETCS | Engine Control (1GR-FE), Electronically Controlled Transmission and A/T Indicator (1GR-FE) and Cruise Control (1GR-FE) |
| Engine Control (2TR-FE), Electronically Controlled Transmission and A/T Indicator (2TR-FE) and Cruise Control (2TR-FE) | ||
| 10A | H-LP LH-HI | Headlight |
| 10A | H-LP LH-LO | Headlight |
| 10A | H-LP RH-HI | Headlight |
| 10A | H-LP RH-LO | Headlight |
| 10A | HORN | Horn |
| Theft Deterrent | ||
| Wireless Door Lock Control (w/o Smart Key System) | ||
| 10A | INJ | Accessory Meter |
| Audio System (Separate Type Amplifier), Navigation System and Parking Assist (Rear View Monitor w/Navigation System) | ||
| Combination Meter | ||
| Engine Control (1GR-FE), Electronically Controlled Transmission and A/T Indicator (1GR-FE) and Cruise Control (1GR-FE) | ||
| Engine Control (2TR-FE), Electronically Controlled Transmission and A/T Indicator (2TR-FE) and Cruise Control (2TR-FE) | ||
| Ignition (1GR-FE) | ||
| Ignition (2TR-FE) | ||
| 10A | MIR HTR | Rear Window Defogger and Mirror Heater |
| 10A | RAD NO.1 | Audio System (Separate Type Amplifier), Navigation System and Parking Assist (Rear View Monitor w/Navigation System) |
| 10A | SECURITY | Engine Immobiliser System (w/o Smart Key System) |
| Theft Deterrent | ||
| Wireless Door Lock Control (w/o Smart Key System) | ||
| 10A | STOP | ABS, Crawl, Multi-Terrain Select, Auto LSD, Downhill Assist Control, Hill-Start Assist Control, TRAC, A-TRAC and VSC |
| Engine Control (1GR-FE), Electronically Controlled Transmission and A/T Indicator (1GR-FE) and Cruise Control (1GR-FE) | ||
| Engine Control (2TR-FE), Electronically Controlled Transmission and A/T Indicator (2TR-FE) and Cruise Control (2TR-FE) | ||
| Shift Lock (1GR-FE) | ||
| Shift Lock (2TR-FE) | ||
| 10A | STOP | Smart Key System |
| Stop Light | ||
| Trailer Towing | ||
| 15A | TURN & HAZ | Trailer Towing |
| Turn Signal and Hazard Warning Light | ||
| 20A | A/F | Engine Control (1GR-FE), Electronically Controlled Transmission and A/T Indicator (1GR-FE) and Cruise Control (1GR-FE) |
| Engine Control (2TR-FE), Electronically Controlled Transmission and A/T Indicator (2TR-FE) and Cruise Control (2TR-FE) | ||
| 20A | DEICER | Front Window Deicer |
| 20A | H-LP HI | Automatic Light Control and Light Auto Turn Off System |
| Headlight | ||
| Theft Deterrent | ||
| Wireless Door Lock Control (w/o Smart Key System) | ||
| 20A | STRG LOCK | Smart Key System |
| 25A | EFI | Engine Control (1GR-FE), Electronically Controlled Transmission and A/T Indicator (1GR-FE) and Cruise Control (1GR-FE) |
| Engine Control (2TR-FE), Electronically Controlled Transmission and A/T Indicator (2TR-FE) and Cruise Control (2TR-FE) | ||
| 30A | ABS NO.2 | ABS, Crawl, Multi-Terrain Select, Auto LSD, Downhill Assist Control, Hill-Start Assist Control, TRAC, A-TRAC and VSC |
| 30A | AMP | Audio System (Built-in Type Amplifier) |
| Audio System (Separate Type Amplifier), Navigation System and Parking Assist (Rear View Monitor w/Navigation System) | ||
| 30A | DEF | Rear Window Defogger and Mirror Heater |
| 30A | PTC HTR NO.2 | Air Conditioning |
| 30A | PTC HTR NO.3 | Air Conditioning |
| 30A | ST | Smart Key System |
| Starting (w/o Smart Key System) | ||
| 30A | SUB BATT | Trailer Towing |
| 30A | TOWING | Trailer Towing |
| Turn Signal and Hazard Warning Light | ||
| 30A | TOWING BRK | Trailer Towing |
| 30A | TOWING TAIL | Trailer Towing |
| 50A | ABS NO.1 | ABS, Crawl, Multi-Terrain Select, Auto LSD, Downhill Assist Control, Hill-Start Assist Control, TRAC, A-TRAC and VSC |
| 50A | AIR PMP | Engine Control (2TR-FE), Electronically Controlled Transmission and A/T Indicator (2TR-FE) and Cruise Control (2TR-FE) |
| 50A | HTR | Air Conditioning |
| 50A | PTC HTR NO.1 | Air Conditioning |
| 80A | 400W INV | Power Outlet (120V) |
| 120A | ALT (2TR-FE) | Automatic Light Control and Light Auto Turn Off System |
| Back-Up Light | ||
| Charging | ||
| 120A | ALT (2TR-FE) | Front Fog Light |
| Parking Assist (Intuitive Parking Assist) | ||
| Safety Connect | ||
| Starting (w/o Smart Key System) | ||
| Taillight and Illumination | ||
| Theft Deterrent | ||
| Trailer Towing | ||
| Wireless Door Lock Control (w/o Smart Key System) | ||
| 140A | ALT (1GR-FE) | Automatic Light Control and Light Auto Turn Off System |
| Back-Up Light | ||
| Charging | ||
| Front Fog Light | ||
| Parking Assist (Intuitive Parking Assist) | ||
| Safety Connect | ||
| Starting (w/o Smart Key System) | ||
| Taillight and Illumination | ||
| Theft Deterrent | ||
| Trailer Towing | ||
| Wireless Door Lock Control (w/o Smart Key System) | ||